fbpx

Hästgård i Myckle

Utgångspris

4 500 000 kr

Försäljningssätt

Öppen budgivning

Visning

  • tor 15 jan, kl 17:00 - 17:45

    Anmälan! Vänligen anmäl er på ludvigfast.se

Anmäl till visning

Om fastigheten

Välkommen till en hästgård endast sex kilometer från Skellefteå centrum – en unik kombination av lantlig elegans, generösa ytor och genomtänkt funktion. Den rymliga villan om sju rum och kök, varav tre till fyra sovrum, bjuder på en harmonisk balans mellan klassisk gårdskaraktär och moderna uppgraderingar, där bland annat utbyggnation av ett vinterbonat uterum 2011, jordvärmeanläggning och ett stilrent renoverat badrum från 2015 höjer både komfort och kvalitet. På gården finns ett välplanerat stall med tre boxar samt tillhörande utrymmen och hagmarker, perfekt för den som söker ett fulländat hästliv hemma på den egna gården. Den frodigt uppvuxna trädgården skapar en privat och vacker inramning, och fastigheten utmärker sig ytterligare genom att ägorna sträcker sig hela vägen ner till Skellefteälven – en sällsynt förmån som ger platsen en exklusiv och naturnära karaktär. Detta är ett hem för dig som söker något alldeles extra.

Utöver bostadshuset erbjuder gården komplementbyggnader som förstärker helhetsupplevelsen och möjligheterna. Här finns en charmfull sovstuga med sovloft och vedkamin, idealisk för gäster eller som en rofylld reträtt. En rymlig maskinhall med flera platser ger gott om förvaring och arbetsutrymme, och den stora ladugårdslängan rymmer både garageplatser och hobbyutrymmen, vilket gör gården lika funktionell som den är vacker. Tillsammans skapar byggnaderna en komplett och välutrustad gårdsmiljö som är redo att möta både vardagens behov och lantlivets möjligheter.

Byn Myckle erbjuder en varm och aktiv gemenskap med byaförening, egen byastuga och regelbundna aktiviteter. Jaktklubben ger boende i byn möjlighet till jakt på ca 3 000 hektar, och närheten till Skellefteälven gör fiske och naturupplevelser lättillgängliga året runt. Sommartid lockar det lokala Mobackabadet på kort avstånd, och byn har dessutom två förskolor, vilket gör den särskilt attraktiv för barnfamiljer. År 2027 planeras även en ny cykelväg genom byn och in till staden, vilket ytterligare stärker områdets tillgänglighet och attraktionskraft.

Välkomna att boka vising!

Fastighetsbeteckning och adress

Fastighetsbeteckning

del av Skellefteå Myckle 9:34, röd markering fastighetskarta

Adress

Mycklevägen 139 93198 Skellefteå

Snabbfakta

Totalareal
2,3 ha
Markareal
2,3 ha

Bilder

Visa alla bilder

Planritningar

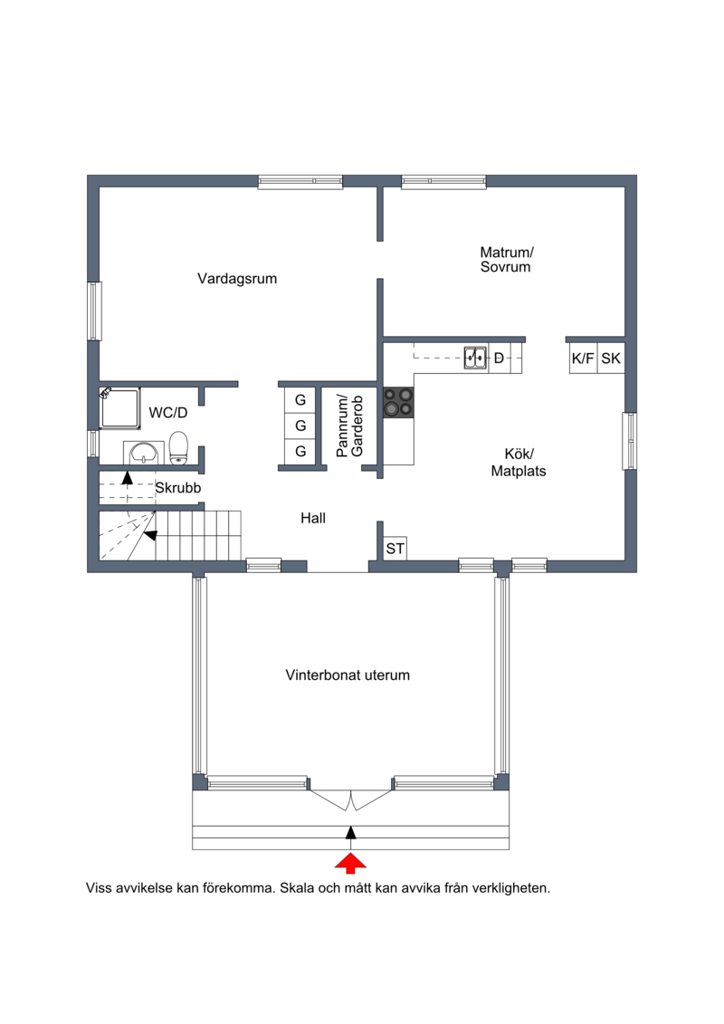
Planlösning bottenvåning (bv)
Planlösning övervåning (öv)

Fakta

Allmänt

Bostaden är en tvåplansvilla med totalt sju rum, varav 3-4 sovrum. Boarean uppgår till cirka 213 kvadratmeter enligt säljarens uppgifter. Huset är ursprungligen uppfört 1915 och genomgick en större ombyggnation år 2011.

Byggnaden har träfasad och plåttak från 1979. Stommen består av timmer och huset är grundlagt med torpargrund, samt platta på mark i den tillbyggda delen. Fönstren är av 2- och 3-glasmodell. Uppvärmning sker via jordvärme installerad 2011 och ventilationen är av självdragstyp. Energideklaration är utfärdad 2015 med energiklass B. Fastigheten är besiktigad och besiktningsprotokoll finns tillgängligt via mäklaren. Fastigheten är ansluten till kommunalt vatten och kommunalt avlopp. Bredband är indraget via Skellefteå Kraft.net.

Utförda renoveringar och åtgärder

1978: Fasaden tilläggsisolerades och ny fasadpanel monterades
1979: Nytt yttertak lades
1980: Köket renoverades
1995: Dusch/WC renoverades
2007: Radonmätning utförd med värden under gällande gräns (protokoll finns ej)
2011: Jordvärme installerades samt byggdes det vinterbonade uterummet ut
2012: Golvet i vardagsrummet togs upp och isoleringen byttes
2014: Balkongen renoverades
2015: Badrum renoverades med kakel och klinker av behörig plattsättare
2023: Kollektorslangen till jordvärmesystemet byttes. Den nya slangen drogs från hästhagens norra sida och vidare söderut. I anslutning till detta finns en brunn där kopplingen kan inspekteras.

Bostadshus

Denna gård passar utmärkt för dig som vill ha lantlig miljö med närhet till stadens utbud. Bostadshuset omfattar två fulla våningsplan. På entréplanet finns kök, vardagsrum och matsal i en sammanhängande planlösning, ett helkaklat badrum, rymlig hall samt pannrum. Övre plan rymmer flera sovrum, ytterligare ett badrum samt tvättutrymme. Takhöjden är generös, cirka 2,60 meter på entréplan och omkring 2,50 meter på övervåningen.

Kök med matplats
Köket är ett stort lantkök med stommar från 1980-talet och uppdaterade luckor från Bogården, cirka tio år gamla. Här finns goda möjligheter för den som vill vidareutveckla köket till ett personligt drömkök. Köksinredningen består av vita luckor, laminatbänkskiva samt vitt kakel ovan arbetsytorna. Den maskinella utrustningen inkluderar diskmaskin från 2023, spis med glashäll från 2014, köksfläkt samt kombinerad kyl och frys.

Väggarna är klädda med pärlspontspanel och golvet är belagt med laminat. Taket är ett vitmålat trätak. Intill köket ligger matsalen, som även kan användas som exempelvis sovrum eller arbetsrum vid behov. Här finns tapetserade väggar med bröstpanel, vitmålat trätak samt laminatgolv.

Vardagsrum
Vardagsrummet är placerat i direkt anslutning till matrummet och har ljusinsläpp från fönster i både norr- och västerläge. Rummet är rymligt och ger gott om plats för större soffgrupp och kompletterande möbler. Golvet består av ett mycket gammalt trägolv, uppskattningsvis omkring 300 år. Väggarna är tapetserade och taket är vitmålat i trä.

Matrum
Gott om plats att möblera med finare matsalsmöbel, eller göra om till ett extra sovrum (4:e sovrummet)

Vinterbonat uterum
År 2011 byggdes bostaden ut med ett vinterbonat uterum om cirka 22 kvadratmeter. Uterummet är uppfört med stora glaspartier som ger ett generöst ljusinsläpp och skapar en fin kontakt med omgivningen året om. Golvet är försett med vattenburen golvvärme vilket gör rummet behagligt att vistas i även under årets kallare månader. Utrymmet är flexibelt och kan inredas efter behov och önskemål, exempelvis som matplats, läshörna, sällskapsrum eller ett mer traditionellt uterum för avkoppling.

Badrum
Huset har två badrum. Badrummet på entréplan totalrenoverades 2015 och är utfört med kakel och klinker. Golvvärme finns i form av både vattenburen värme och elslingor. Här finns även en vattenburen handdukstork.

Badrummet på övre plan är senast renoverat 1995 och är utrustat med våtrumsmatta, våtrumstapet, WC, handfat samt duschhörna.

Sovrum 1
Ett generöst sovrum med laminatgolv och tapetserade väggar. Fönster finns i både norr- och västerläge. I rummet finns en nyare garderob som ingår i köpet. Rummet kan delas av för att skapa två separata sovrum. Sovrum 1 kan användas som huvudsovrum

Tv-rum
Stort tv-rum med utgång till balkong. Golvet är belagt med laminat och väggarna är tapetserade.

Sovrum 2
Detta sovrum nås via tv-rummet och är utrustat med inbyggda garderober som ger goda förvaringsmöjligheter. Sovrum 2 kan användas som huvudsovrum.

Sovrum 3/arbetsrum (tidigare kök)
Rummet har tidigare använts som kök och köksinredningen finns kvar, dock är vatten och avlopp avstängda och pluggade i golvet. Inga vitvaror finns kvar förutom en extra frys som ingår i köpet. Tar man bort köksinredningen erhålls ett fullvärdigt sovrum.

Tvättstuga
På övervåningen finns också en tvättstuga med tvättho och tvättmaskin från -22.

Övriga byggnader

Den stora ladugårdsbyggnaden inrymmer det moderna stallet med tre boxar från 2018. Stallet är isolerat och håller en behaglig temperatur genom hästarnas egen värme. I denna byggnad finns även en ny elcentral och ny el i hela stalldelen. Till stallet hör ett isolerat förråd, en uppvärmd sadelkammare, praktiska foderutrymmen samt ett gödselrum med betongplatta. Övriga delar av ladugården rymmer garageytor med betongplatta, ett kallgarage med grusgolv, flera förrådsutrymmen samt en isolerad snickarbod.

Bakom ladugården finns en vidbyggd vedbod och ett mindre förråd, och här finns även ett ytterligare vindskydd som kompletterar funktionaliteten. Intill byggnaden står två timrade lador, och på gården återfinns dessutom en rymlig maskinhall med fyra platser för traktor och redskap. En fristående timrad stuga med sovloft och vedkamin erbjuder extra utrymme och charm – kaminen fungerar men är inte i bruk hos sotningsväsendet. Rundbågehallen inte ingår i försäljningen.

Åkermark

Fastigheten omfattar cirka en hektar åkermark, vilken idag nyttjas som hagmark och bete för gårdens hästar. Utöver den egna marken används även cirka fyra hektar intilliggande mark genom muntlig överenskommelse

Driftkostnad

Fastighetens årliga driftkostnader uppgår till cirka 44 200 kronor. I detta ingår en beräknad elförbrukning om cirka 20 000 kWh per år, motsvarande en kostnad om ungefär 22 700 kronor. För vatten och avlopp tillkommer cirka 6 750 kronor per år, medan renhållning uppgår till ungefär 6 750 kronor årligen. Fastigheten har även en försäkringskostnad om cirka 8 000 kronor per år. Till fastigheten ingår 3 772 kwh frikraft varje år, där av den låga kostnaden för el.

Näringsfastighet

Den här fastigheten är en lantbruksfastighet och därmed en näringsfastighet. Ägandet innebär bokföringsskyldighet och rätt till avdrag för kostnader som uppkommer genom ägandet. Momsplikt kan föreligga vid skogsbruk/jordbruk/uthyrning av mark. Rådgör med mäklaren/rådgivare.

Förvärvstillstånd

Förvärvstillstånd behövs ej för fysisk person.

Avstyckning

Säljarna avser att avstycka den mindre stugan vid älven, vilken därmed inte ingår i överlåtelsen. Cirka 750 kvm tomtmark kommer att avskiljas från fastigheten.

Fastighetens nuvarande areal uppgår till 23 565 kvm. Den mindre stugan kommer att avstyckas och omfattar cirka 750 kvm. Tomtarealen efter avstyckning beräknas därmed uppgå till cirka 22 815 kvm.

Tillträde

Tillträde kan ske enligt överenskommelse sommaren 2026

Taxeringsuppgifter

Taxeringsår
2023
Summa Taxeringsvärde
3 773 000 SEK

Inteckningar

Det finns pantbrev uttagna om sammanlagt 3 667 000 kr

Dokument & bilagor

Kontakta oss

Tack, dina uppgifter är skickade


Boka visning


Genom att klicka på Skicka godkänner jag Ludvig & Co Fastighetsförmedlings dataskyddspolicy

Kontakta oss

Liknande fastigheter